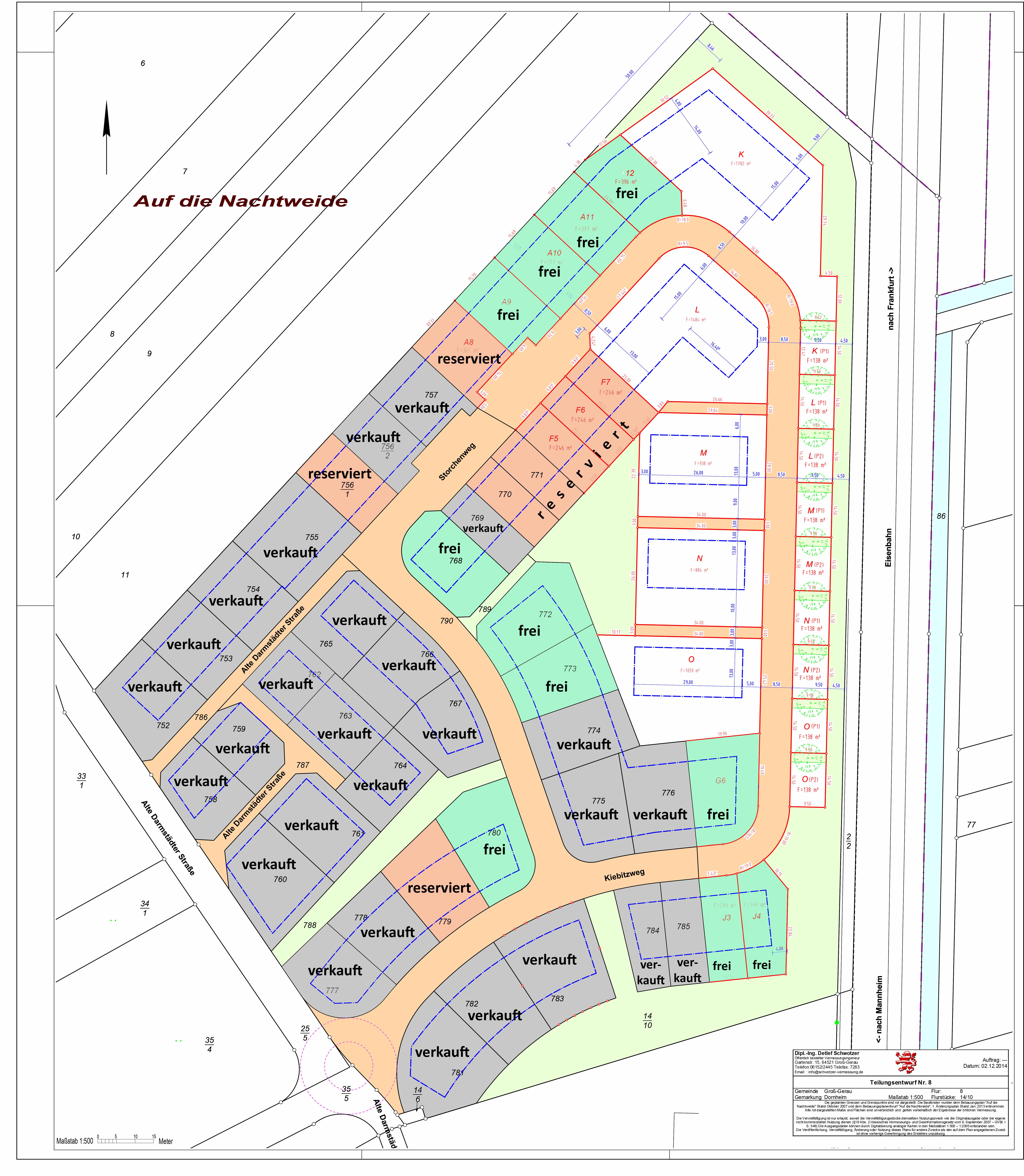
Verfügbare Grundstücke - Komatsu Fläche  
 

 

     
Plan Verfügbare Grundstücke
   
Zum Vergrößern Klicken Sie Bitte Auf Das Bild
     
Im Moment stehen nur noch Reihenhausgrundstücke zur Verfügung. Gern geben wir Ihnen fortführende Informationen.
         
         
         
         

Zurück